Električni visokopodizni viličar – profesionalno rješenje za skladište
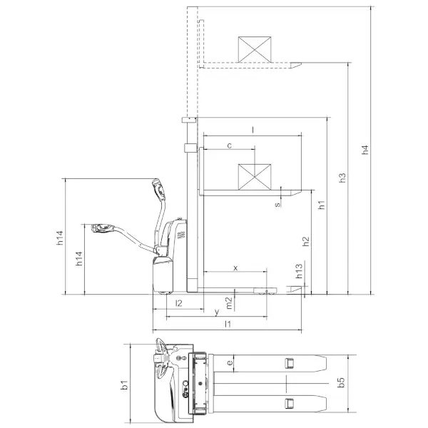
Električni visokopodizni paletni viličar nosivosti 1,2 ili 1,5 tone, s visinom podizanja od 2,5 do 3,5 metara, ovisno o modelu, odlikuje se modularnim dizajnom koji omogućuje jednostavno održavanje, osloncem na podlogu u četiri točke te ugrađenim punjačem s jednostavnim pristupom napajanju.
Nisko težište uređaja osigurava veću stabilnost, a kompaktan dizajn, mali radijus okretanja i dimenzije usporedive s ručnim paletarom omogućuju izvrsnu preglednost i lako manevriranje. Motor i kočnica mogu se jednostavno zamijeniti, a uređaj je usklađen s CE oznakom i normama EN ISO 3691-1, EN 1175-1 i EN 16307-1.
Gel napajanje za maksimalnu pouzdanost
Standardno opremljen kvalitetnim gel baterijama, viličar osigurava pouzdaniji rad uz minimalno održavanje. Gel tehnologija eliminira potrebu za dolivanjem vode i pruža otpornost na duboka pražnjenja, što produljuje životni vijek baterije. Za klijente koji traže vrhunske performanse, na narudžbu nudimo Li-ion verziju koja donosi kraće vrijeme punjenja, veću energetsku učinkovitost i dulji radni vijek.
Idealan električni stacker
Ovaj model idealno odgovara skladištima s visokim regalnim sustavima, logističkim centrima, proizvodnim pogonima te svim djelatnostima koje zahtijevaju učinkovito premještanje paletne robe na visinu. Tihi električni pogon omogućuje rad u zatvorenim prostorima bez emisije štetnih plinova.
Dostupan je u više konfiguracija prema visini podizanja, a naš stručni tim pomoći će vam odabrati optimalnu varijantu za vaše potrebe.
| Specifikacije | Električni visokopodizni viličar |
|---|---|
| Tip / Dizajn | Električni paletni viličar s modularnom konstrukcijom i oslonom na podlogu u 4 točke |
| Nosivost | 1,2 t ili 1,5 t (ovisno o modelu) |
| Visina podizanja | 2,5 m, 3 m ili 3,5 m (ovisno o modelu) |
| Ključne tehničke prednosti | Nisko težište (stabilnost), mali radijus okretanja i širina prolaza (usporedivo s ručnim), kompaktan dizajn (preglednost) |
| Napajanje i održavanje | Baterija: Standard GEL, opcija Li-on (litij-ionska). Ugrađeni punjač i jednostavan pristup napajanju; motor i kočnica lako se mijenjaju; modularni dizajn olakšava održavanje. |
| Certifikacija i standardi | CE oznaka, norme EN ISO 3691-1, EN 1175-1, EN 16307-1 |
| Kompaktan i stabilan električni viličar za podizanje i rad na visini u ograničenim prostorima. | |












Recenzije
Još nema recenzija.